- Ti trovi in:
- Home ›
- Immobili ›
- San Benedetto del Tronto ›
- Vendita ›
- Appartamento ›
- Appartamento in vendita a San Benedetto del Tronto
Cod. 9641
Appartamento in vendita a San Benedetto del Tronto
PORTO D'ASCOLI (centro) - Via Sgattoni, 7
-
67
mq -
2
Camere -
1
Bagni
€ 183.000
Classe energetica: A4 EP glnr: 52.00 kwh/㎡Descrizione
L'agenzia Re Casa Immobiliare propone in Vendita Appartamento di nuova ristrutturazione, in piccolissimo complesso residenziale composto da un unico piano sito in Via Sgattoni n. 14 in Porto D'Ascoli.
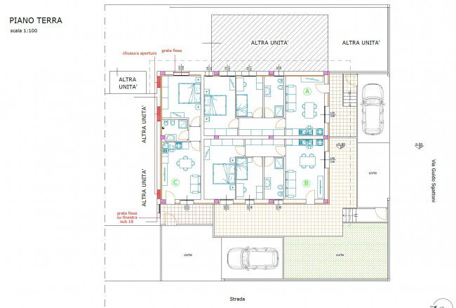
Appartamento 67 mq al piano terra con ingresso autonomo. Ingresso su soggiorno con angolo cottura, due camere di cui una matrimoniale ed una singola, un bagno con finestra, corte esterna di mq 15 intermente pavimentata. Posto auto scoperto di mq 19.
Collocato all'interno di piccolo fabbricato di 3 appartamenti, su un unico livello. Nessun spesa condominiale. Immobile indicato è la unità A. Esposizione sud - est. Classe energetica prevista A4.
Internamente l'immobile sarà rifinito con: pavimentazione in gres porcellanato, infissi in pvc con doppio vetro a taglio termico secondo le ultime normative relative all'isolamento termo acustico, bagno con sanitari sospesi, tapparelle elettriche, impianto di riscaldamento a pavimento, predisposizione impianto di raffrescamento, portone di ingresso blindato, video citofono.
Possibilità di personalizzione delle finiture con scelta di materiali extra capitolato, con differenza dei costi a seconda dei materiali utilizzati. Inizio lavori previsto per novembre 2025 e ultimazione lavori prevista in 6 mesi dalla stipula del preliminare di compravendita.
Possibilità di usufruire delle detrazioni inerenti la ristrutturazione nella percentuale del 50% in caso di acquisto come prima casa e del 36% in caso di acquisto come seconda casa. La somma imponibile su cui poter calcolare le detrazioni è di Euro 96.000,00.
Ottima soluzione per chi ama la tranquillità, con servizi tutti facilmente raggiungibili, a pochi passi dal Centro Commerciale La Fontana.
Caratteristiche
Scopri le caratteristiche di questo immobile
Nelle vicinanze
Servizi e infrastrutture della zona
Ubicazione immobile
Contattami
