- Ti trovi in:
- Home ›
- Immobili ›
- San Benedetto del Tronto ›
- Vendita ›
- Appartamento ›
- Appartamento in vendita a San Benedetto del Tronto
Cod. 9680
Appartamento in vendita a San Benedetto del Tronto
PORTO D'ASCOLI (lungomare) - Via Fratelli Cervi, 18
-
72
mq -
2
Camere -
2
Bagni
€ 330.880
Classe energetica: A3 EP glnr: 42.45 kwh/㎡Descrizione
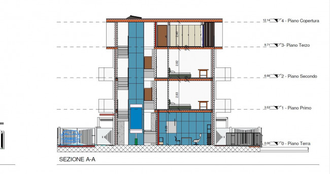
San Benedetto del Tronto, Porto D'Ascoili, Via Fratelli Cervi n. 18, 300 metri dal mare, fabbricato in completa ristrutturazione sviluppato in quattro piani fuori terra.
Opzione 1: Appartamento 72 mq al piano primo con ascensore composto da ingresso su ampio soggiono/cucina, due camere da letto di cui una matrimoniale ed una singola, due bagni entrambi con doccia di cui uno nella zona giono con antibagno, due balconi per complessivi mq 23. Completa la proprietà un posto auto scoperto. Esposizione sud - est - ovest.
Opzione 2: Appartamento 72 mq al piano primo con ascensore composto da ingresso su ampio soggiono/cucina, due camere da letto matrimoniali, un bagno, due balconi per complessivi mq 23. Completa la proprietà un posto auto scoperto. Esposizione sud - est - ovest.
La parte acquirente potrà se richiesto apportare modifiche inerenti la distribuzione interna degli spazi, secondo le proprie necessità, nel rispetto delle aperture esterne e delle condutture.
Fabbricato composto da: 6 unità abitative e precisamente da un Appartamento al piano terra, due appartamenti al piano primo, due appartamenti al piano secondo, un Appartamento al piano terzo.
Finiture: i pavimenti dei soggiorni, cucine, camere e disimpegni, saranno realizzati con una pavimentazione in Gres della Marazzi effetto legno Corona Effetto Legno- Marazzi Block 75x 75, i rivestimenti dei bagni saranno realizzati in piastrelle di grès porcellanato della Marazzi grande lastri oppure ditte similari in formato 60 x 120 cm, delle seguenti serie e colori a scelta del cliente, i portoncini di primo ingresso alle unità abitative saranno del tipo blindato di dimensioni 90x210cm, con livello di antieffrazione di classe 3 ad anta singola saldamente affrancati alla struttura, ad elevati prestazioni di isolamento acustico e termico, i portoncini saranno dotati di: porta di sicurezza in acciaio rivestita di legno, ad una sola anta, rostri fissi, limitatore di apertura a traslazione, anta di spessore costruita in acciaio zincato, 2 cerniere registrabili nei due sensi in acciaio, telaio su tre lati in acciaio zincato di spessore, angolari ferma pannello, isolamento acustico fino a 40 dB, la progettazione dell'edificio e dei relativi impianti è stata concepita per raggiungere un'elevata classificazione energetica, in conformità al D.M. 26 giugno 2015 e alle recenti disposizioni orientate alla neutralità carbonica degli edifici, in particolare, l'edificio verrà certificato in classe A3.
La climatizzazione estiva e invernale, così come la produzione di acqua calda sanitaria, saranno garantite da un impianto a pompa di calore aria/acqua ad alta efficienza, l'intero fabbisogno di acqua calda sanitaria sarà soddisfatto da un sistema a pompa di calore ad alta efficienza, lo stesso impianto che garantirà anche il riscaldamento e il raffrescamento degli ambienti, grazie a questa soluzione, sarà possibile ottimizzare i consumi energetici e assicurare un elevato livello di comfort interno in ogni stagione. La funzione primaria di tali circuiti è il riscaldamento invernale, mediante la circolazione di acqua calda a bassa temperatura, stabilita in fase progettuale attraverso specifici calcoli termotecnici con impianto a pavimento. Stratigrafia e componenti Pannelli in polistirolo sagomato: fungono da supporto isolante, sia dal punto di vista termico che acustico, e permettono di ancorare in modo ordinato le tubazioni. Tubazioni in polietilene: disposte a serpentina, in cui fluisce il fluido termovettore (acqua calda). La configurazione a serpentina, progettata secondo specifici criteri di passo e lunghezza, garantisce una distribuzione omogenea del calore. Massetto alleggerito: realizzato sopra il pannello isolante e le tubazioni, ha la funzione di incorporare e proteggere l'impianto radiante, consentendo successivamente la posa del pavimento. Lo spessore e la composizione del massetto sono determinati in base alle caratteristiche strutturali e di isolamento richieste dal progetto.
Finitura del pavimento: può essere costituita da piastrelle, parquet o altro materiale idoneo alla trasmissione del calore. È importante che lo strato di finitura abbia un'elevata conducibilità termica, per massimizzare l'efficienza dell'impianto. Collettori e regolazione Ogni impianto radiante è collegato a un collettore (o più collettori, se l'abitazione presenta più zone), dotato di: Rubinetti di intercettazione sulle partenze e sui ritorni, per consentire eventuali interventi di manutenzione; Flussimetri o misuratori di portata, che permettono di bilanciare correttamente ciascun circuito; Raccorderia e sistemi di sfogo aria e scarico acqua per eliminare eventuali bolle d'aria e consentire la pulizia del circuito; Attuatori elettrotermici su ogni singolo circuito, pilotati da una sonda di temperatura ambiente (o termostato), così da poter regolare in modo indipendente la temperatura di ciascun locale o zona.
Ogni Appartamento sarà dotato di un sistema di regolazione della temperatura, costituito da un'interfaccia utente posizionata nel soggiorno (oppure in un altro locale, secondo le indicazioni della Direzione Lavori). Tale sistema potrà, inoltre, essere integrato con un sistema domotico, consentendo di impostare e controllare agevolmente tutti i parametri di climatizzazione, sia localmente che da remoto. Le unità a parete saranno comandate da apposito comando. La Ventilazione Meccanica Controllata (VMC) con recupero di calore offre numerosi vantaggi dal punto di vista del comfort abitativo, dell'efficienza energetica e della salubrità degli ambienti interni.
INFISSI: I serramenti esterni degli appartamenti saranno in allumino. Saranno dotati di doppia guarnizione, profili squadrati, maniglia tipo SHUKO in alluminio o acciaio inox (forme a scelta tra vari modelli) telaio e controtelaio. La parte vetrata sarà costituita da doppi vetri basso-emissivi ad alto abbattimento acustico e vetrocamera riempita di gas argon, il tutto secondo le specifiche del progetto ex Legge 10. Tutti i serramenti assicureranno elevate prestazioni di isolamento termico e acustico. Le tapparetlle saranno in allumonio coibendato ed elettriche.
FOTOVOLTAICO: impianto forovotaico per fabbisogno condominiale
IMPIANTO DOMOTICA All'interno degli appartamenti sarà prevista la sola predisposizione per il sistema domotico smart del controllo integrato di varie attività legate alla gestione della casa: luci (accensione/spegnimento locale, generale e da remoto); rulli oscuranti (apertura/chiusura locale, generale e da remoto); carichi (possibilità di impostare una priorità degli elettrodomestici in modo da non superare la potenza fornita da A2A con conseguente interruzione della corrente); consumi energetici tramite smartphone e ricezione di notifiche nel caso di superamento del limite di energia per evitare il blackout; scenari (la possibilità con un solo comando di attuare più operazioni, es. comando notte si spengono tutte le luci e si chiudono i teli oscuranti, personalizzabile dall'utente).
Per il controllo da remoto di tali funzioni tramite app dedicata, sarà necessario usufruire di collegamento internet; si precisa che la connettività internet non viene fornita da capitolato, bensì rimarrà a carico dell'acquirente sottoscrivere un contratto con l'operatore di telefonia fissa prescelto.
Consegna prevista: mese di luglio 2026.
Impresa realizzatrice: METROQUADRO SRL, con sede operativa a Cupra Marittima (AP).
Caratteristiche
Scopri le caratteristiche di questo immobile
Nelle vicinanze
Servizi e infrastrutture della zona
Ubicazione immobile
Contattami
